一、技术名称:钢水真空循环脱气工艺干式(机械)真空系统应用技术
二、技术所属领域及适用范围:钢铁行业 炼钢真空精炼技术领域的 RH、VD 及VOD 工艺
三、与该技术相关的能耗及碳排放现状
目前,国内外的钢水真空循环脱气工艺(RH 工艺)所用真空系统均为湿式真空系统,即多级蒸汽喷射真空泵系统。近年来,国外 VD 及 VOD 工艺有较少部分采用干式机械真空系统,国内尚无先例。湿式真空系统的能耗和水耗约为干式机械真空系统的 10 倍。目前该技术可实现节能量 1 万 tce/a,CO2 减排约 3 万 t/a。
四、技术内容
1.技术原理
钢水真空循环脱气系统工艺(RH 工艺)是一种重要的钢水炉外精炼方法,具有脱气、脱碳、温度补偿、均匀钢水温度及成分、去除钢中夹杂物等功能。由于钢水真空循环脱气系统工艺要求的真空度高、废气量大,因此采用两级罗茨泵串联之后再与干式螺杆泵串联,组成真空泵组。该泵组是一种将罗茨泵与干式泵相结合的机械真空泵系统,利用罗茨泵的超高抽气能力对 RH 工艺废气”增压”来满足高抽气量的要求,利用干式螺杆泵的高压缩比将工艺废气”压缩”至大气压之上后排至大气,并满足快速抽真空的要求。
2.关键技术
(1)满足大型 RH 装置抽气能力的干式机械真空泵组的组态技术;
(2)干式机械真空泵组安全运行技术;
(3)适应 RH 高温、高 CO、含 O2 烟气过滤及除尘系统技术;
(4)干式机械真空泵组与 RH 精炼模式的匹配控制技术。
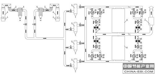
3.工艺流程
该技术的工艺流程见图 1。
1 钢水包 2 真空槽 3 水冷弯 4 气冷器 5 过滤器 6 真空泵组 6A 罗茨泵
6B 冷却器 6C 罗茨泵 6D 冷却器 6E – 螺杆泵 6F – 冷却器 7 – 废气处理器
图 1 干式机械真空系统流程简图
五、主要技术指标
该技术的主要指标见表 1。
表1 RH 干式机械真空系统主要技术参数
 |